Nebraska 4m X 3m Log Cabin
Nebraska 4m x 3m log cabin
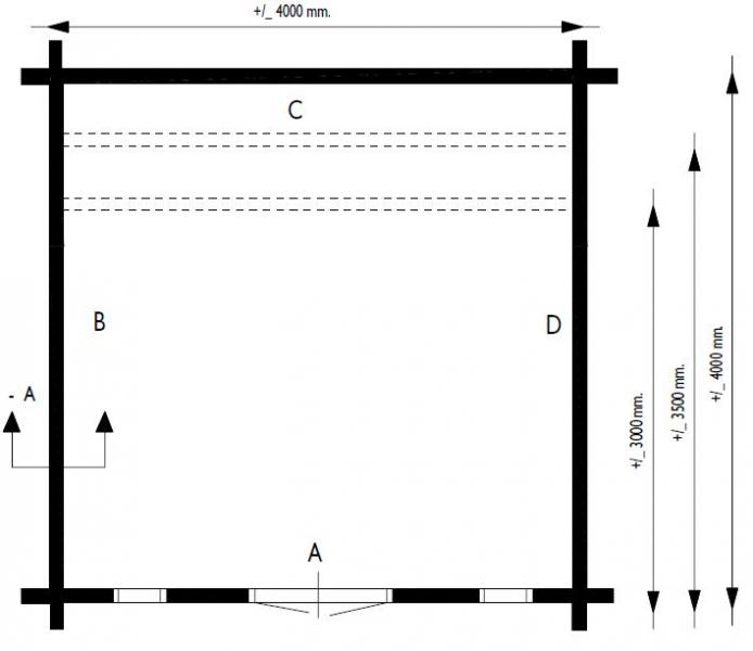
The Lugarde 4m x 3m Nabraska cabin has the same front wall layout as the Alabama cabin but with the ridge line the other way round to give a more traditional Scandinavian styling. It can also come in 3.5m & 4m depths (as well as the 3m deep version) to suit you.
Log Cabin Nebraska 4m x 3m log cabin Available Options
![]() |
Lugarde Log Cabin Nebraska 4x3m | |
| Model 4m x 3m log cabin - BN07 |
||
| Full Cabin Spec >>> | ||
| Now From | Call For Price | |
![]() |
Lugarde Nebraska 4m x 3.5m Log Cabin | |
| Model BN08 |
||
| Full Cabin Spec >>> | ||
| Now From | Call For Price | |
![]() |
Lugarde Log Cabin Nebraska 4x4m | |
| Model BN09 |
||
| Full Cabin Spec >>> | ||
| Now From | Call For Price | |

To ASK US a question




